SERÁ CONSTRUIDO EN EL BARRIO LIBERTAD
A través de la Secretaría de Obras Públicas de la Municipalidad de Cañuelas se difundió el proyecto de lo que será la próxima terminal de ómnibus de media y larga distancia en nuestra ciudad.

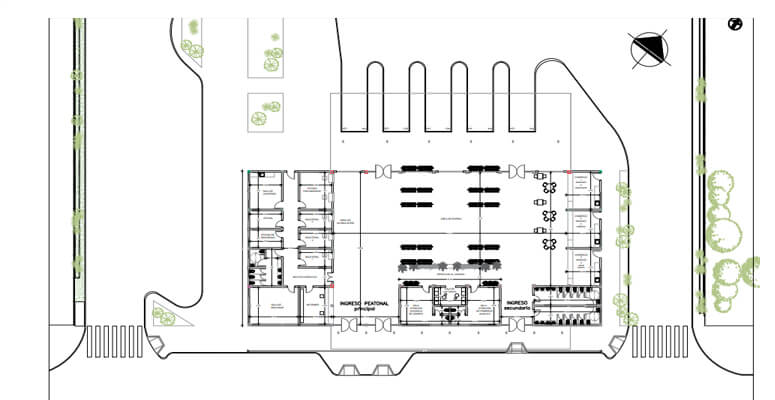
La terminal estará ubicada sobre la colectora Esteban Reimer donde funcionara, hasta hace un tiempo, un depósito judicial de autos.
La superficie total será de 1300 m2 (920 de superficie cubierta y 380 de semicubierta) y contará con cinco dársenas para micros ubicados en el interior de la terminal.
El proyecto contempla además una sala de espera, sanitarios, boleterías, oficina de encomiendas, sala de choferes, sala de informes, sala de máquinas, sala de cámaras de seguridad, kiosco, confitería y restaurante
Sobre el frente de la terminal habrá dársenas para taxis y remises, otra para micros locales un sector para vehículos particulares.

Los transportes de media y larga distancia ingresarán por el viejo camino a Las Heras, recorriendo unos 70 metros hasta desembocar en el interior de la terminal.
Fuentes municipales confirmaron que el proyecto ya tuvo sus revisiones por parte de la Secretaría de Transporte dela Nación cuyos técnicos realizaron distintas observaciones respecto a la distribución y equilibrio de los espacios.
Las revisiones los especialistas del “Programa de Infraestructura Nodal de Transporte Público de Pasajeros” sugirieron incorporar distintos elementos de confort y servicio, como puertos USB y enchufes en la sala de espera; bicicleteros; box de lactancia; espacio lúdico para niños en área de espera; DEA (desfibriladores externos automáticos); cambiadores de bebés; módulos de boletería para personas con movilidad reducida y sistema de audio centralizado.

